农村只选欧式别墅, 实际建房却是中式好? 看了这9套图纸我沉默了
2017-08-21 18:40阅读:
中式是我国的传统建筑,有着扎根于本土的独特建筑魅力,过去长期占据着农村自建房的主体位置。随着时间的变化发展和科学技术的进步,传统的建筑形式逐渐被现代的工艺所替代,风格也发生了变化,在农村更常见造型各异的欧式别墅。但中式自始至终仍是中国人的情怀所在,也得到了改革创新,成为糅合现代工艺的简约新中式,也渐渐被人所接受,今天就介绍9套中式美宅,自己建房还是中式好?看了图纸再说!
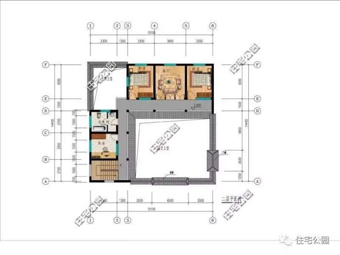
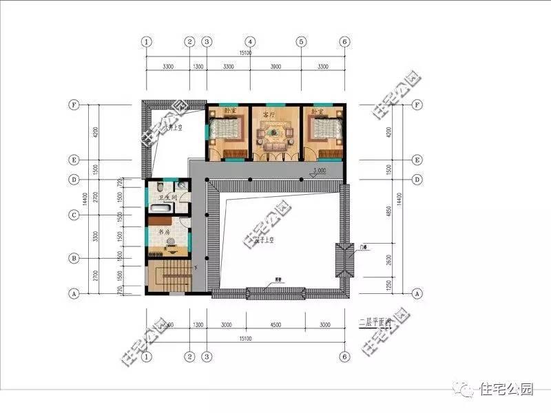
户型一
尺寸:15.1mX14.4m
传统的中式建筑融入现代工艺,保留经典的白墙黛瓦,更有木材装饰其中,外观上更加偏向传统的审美风格,婉约由不失大气。

平面布局图:
双庭院设计,预留足够的绿化面积,营造良好的生态环境;厨房与活动区分离,减少油烟对生活的污染,就餐环境相对舒适整洁。
实际建房却是中式好?
看了这9套图纸我沉默了' TITLE='农村只选欧式别墅,
实际建房却是中式好?
看了这9套图纸我沉默了' />
室内布局简单实用,大客厅+2卧室,另有书房,满足在家学习办公的需求。

户型二
尺寸:17.2mX12.92m
整体造型非常契合简约的现代住宅风范,细节部分处理则富有中式之美,完美结合天然元素,打造舒适的居家空间。

平面布局图:
采用动静分离设计,生活区相对安静,居家生活更加舒适随性,也能较好的满足业主的各种需求。

二层布局相对简单,2卧室+大露台,另有屋顶花园,既能满足种草养花的消遣,又有助于房子的降温保暖,可谓一举两得。

户型三
尺寸:12.76mX11.76m
简约的徽派建筑,房子结构更加简洁流畅,经典的马头墙是永恒不变的主题,少见的地下车库,实用又美观。

平面布局图:
地下室部分除了车库,更有储藏间和地窖,满足不同的储存需求。

一层主卧自带独立卫生间,适合做老人房,方便家中老人的起居生活。

二层3卧室,能较好的满足家庭成员的居住需求。

户型四
尺寸:15.6mX19.6m
新中式的经典户型,采用传统的合围式设计,营造独立的私人领域,打造绿色健康的居家生活。

平面布局图:
前后门皆设有庭院,预留了足够的室外空间,既开阔了视野,又有合适的活动空间。

户型五
尺寸:24.6mX23.2m
二层的新中式,适合人多较多的大家庭,外观更有现代的立体美感,很有层次感。

平面布局图:
布局贴合传统的庭院设计,共有4个入口,营造相对独立的居住空间,家庭成员的生活不易受干扰,私密性较好。

户型六
尺寸:24mX11.2m
细节上更加贴合传统中式建筑,精美的窗棂和雕花设计,彰显匠人精湛工艺的同时,散发出优雅的气质。

平面布局图:
贴心周到的考虑了出行的需求,设有车库,可停放车辆;入户设有玄关,隔断视线,避免直接的开门见山,保护业主的隐私。
![]()