泉州·红韵——4层简欧风格自建房别墅设计
2019-06-30 10:50阅读:

项目名称:泉州蒋宅
编号:FH-4F-43
建筑面积:400
建筑结构:框架结构
房屋尺寸:开间12.0米,进深12.2米
占地面积:150
参考造价:60-70万(仅供参考根据各地人工费及建材价格波动,各地造价差距较大)
项目背景

宅基地卫星图
项目地点位于泉州,平面地势无较大起伏,村落式聚居,西侧紧挨住户,东北两面各有道路,门前有4米左右小院。

业主提供宅基地尺寸图

现状老房照片
现状为一层石头房。
效果展示

人视图
泉州闽南地区红砖文化与欧式建筑相结合,尽显海丝文化古城之韵。

人视图
闽南红砖古厝,红砖瓦艳丽恢弘,尽显建筑之张扬,而内在质朴端庄,大理石的点缀极具地域特色和人文底蕴,展示出闽南传统文化。

人视图

鸟瞰图

大门设计

露台设计
平面功能
一层平面图

二~三层平面图

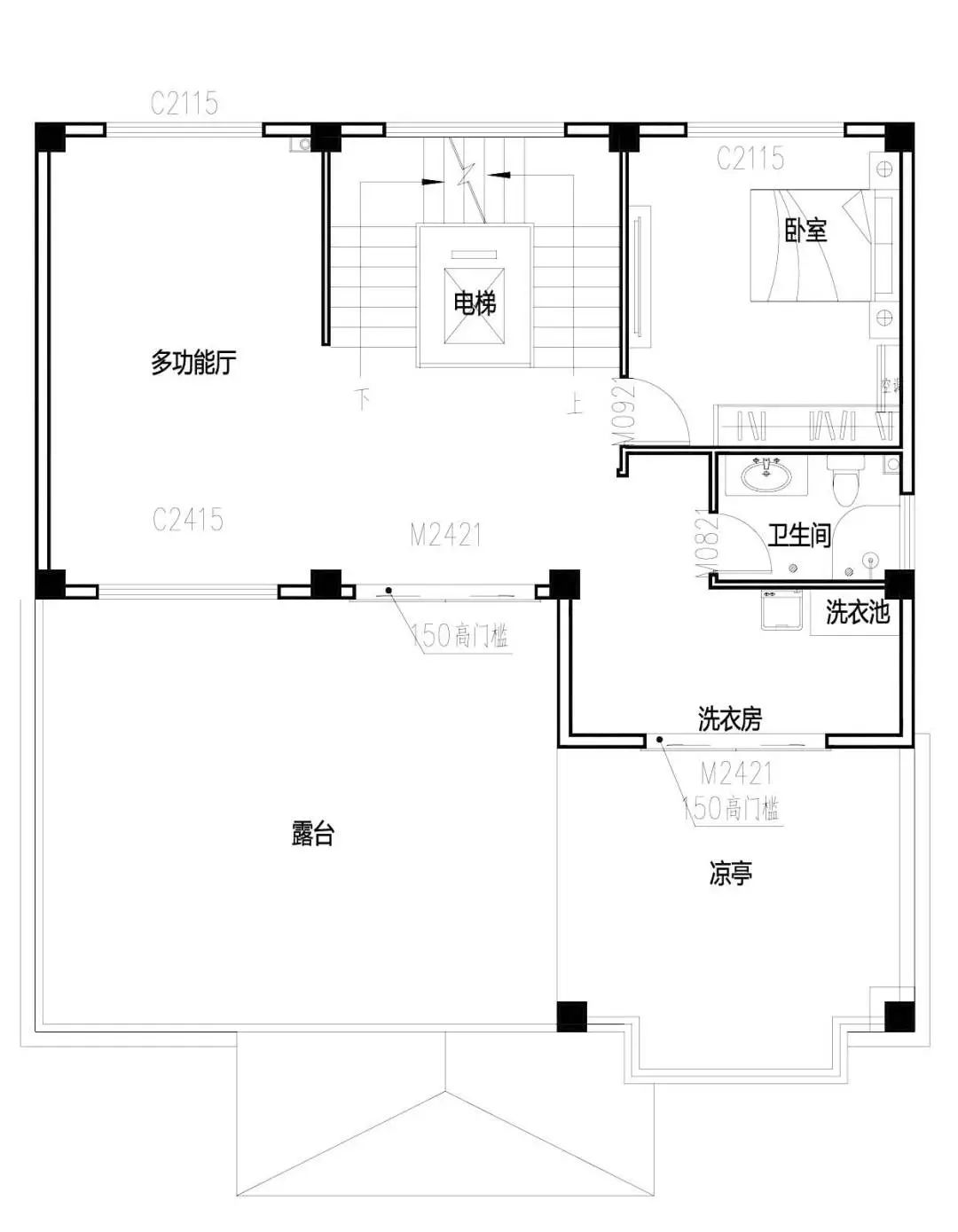
四层平面图
施工日志
2019年4月
基础施工开始

基础开挖放样

条形基础钢筋绑扎
过程方案展示

过程方案一

过程方案一
二三层兄弟分层套房,此方案二三层户型存在差异故不采用。
期待与你合作,欢迎联系我们
方宅公众号
一起寻找最美自建别墅
如果你想盖一所自己的房子
告诉【方宅】你的需求
我们将提供专业设计服务
了解更多房型