作为广东三个文化族群当中的一个文化族群,潮汕文化独具特色,潮汕方言、戏剧、音乐、菜谱、功夫茶、工艺品、民俗风情和人文心态等等为人们所称道。一说到潮汕,人首先会想到的,更多的还是潮汕美食,再谈及,就是李嘉诚……对这个吃货的世界,不想多说了,但想撕开一个口子,说说潮汕的“住”。

△潮汕古民居
自古以来,潮汕就是个人多地少的地区,潮人聚族而居,形成十分强烈的宗族意识,这一点在村落建筑上得以充分体现。特别是富贵望族之家尤以建立规模宏伟的建筑群为荣。古语言“粤有华桥,喜建造大屋大厦,以夸耀乡里。潮汕此风也甚,惟房屋之规模、较之他地尤为宏伟。”因而说,“京华帝王府,潮汕百姓家”。潮汕的古建筑文化五彩缤纷,令人叹为观止。它们形式多样,有牌坊、古墓、佛寺、神庙、民居、亭榭楼阁等,但最具特色的当属潮汕古民居。

△潮汕下山虎
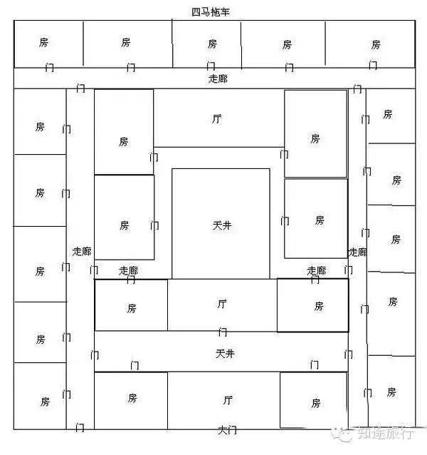
潮式古民居源于中原古风,吸引了北派风格,结合地方的环境、天象,创造性地设计建造了四合院的改进型的下山虎式、四点金式、驷马拖车式等组合的村落。除了非常中式的审美美观之外,它们还能抗台风,防地震,宜居,坚固耐用。
四点金
作为广东三个文化族群当中的一个文化族群,潮汕文化独具特色,潮汕方言、戏剧、音乐、菜谱、功夫茶、工艺品、民俗风情和人文心态等等为人们所称道。一说到潮汕,人首先会想到的,更多的还是潮汕美食,再谈及,就是李嘉诚……对这个吃货的世界,不想多说了,但想撕开一个口子,说说潮汕的“住”。

△潮汕古民居
自古以来,潮汕就是个人多地少的地区,潮人聚族而居,形成十分强烈的宗族意识,这一点在村落建筑上得以充分体现。特别是富贵望族之家尤以建立规模宏伟的建筑群为荣。古语言“粤有华桥,喜建造大屋大厦,以夸耀乡里。潮汕此风也甚,惟房屋之规模、较之他地尤为宏伟。”因而说,“京华帝王府,潮汕百姓家”。潮汕的古建筑文化五彩缤纷,令人叹为观止。它们形式多样,有牌坊、古墓、佛寺、神庙、民居、亭榭楼阁等,但最具特色的当属潮汕古民居。

△潮汕下山虎
潮式古民居源于中原古风,吸引了北派风格,结合地方的环境、天象,创造性地设计建造了四合院的改进型的下山虎式、四点金式、驷马拖车式等组合的村落。除了非常中式的审美美观之外,它们还能抗台风,防地震,宜居,坚固耐用。
四点金



































