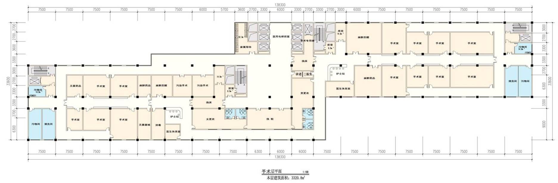
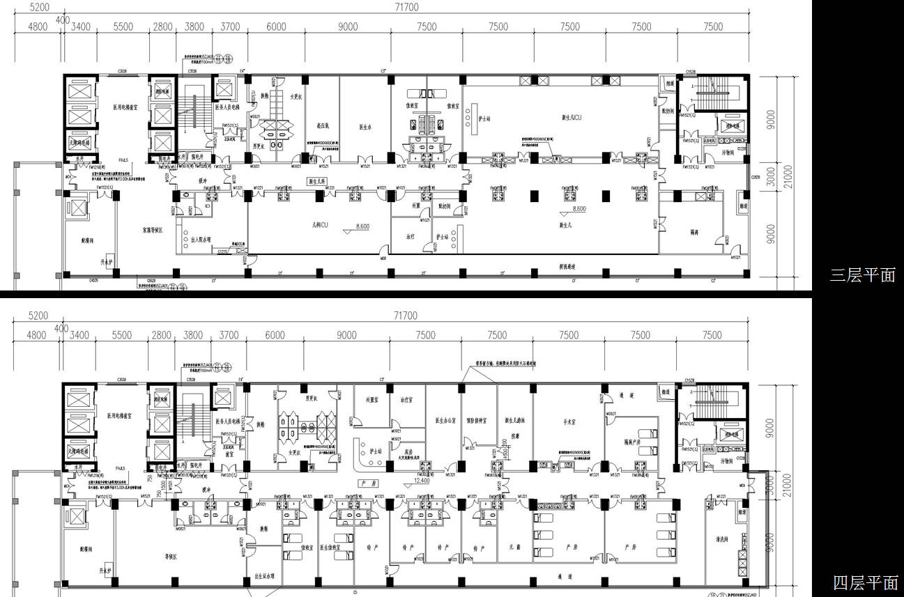
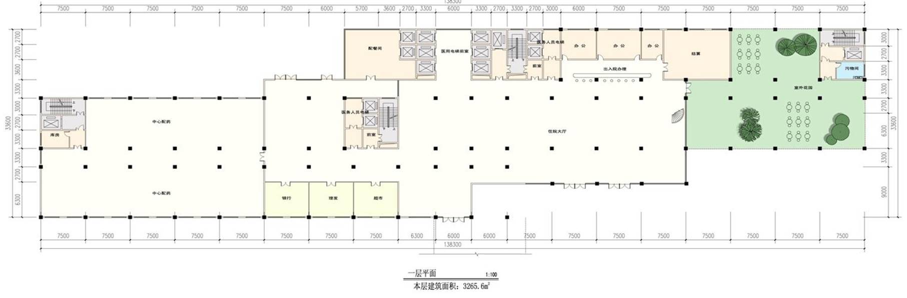
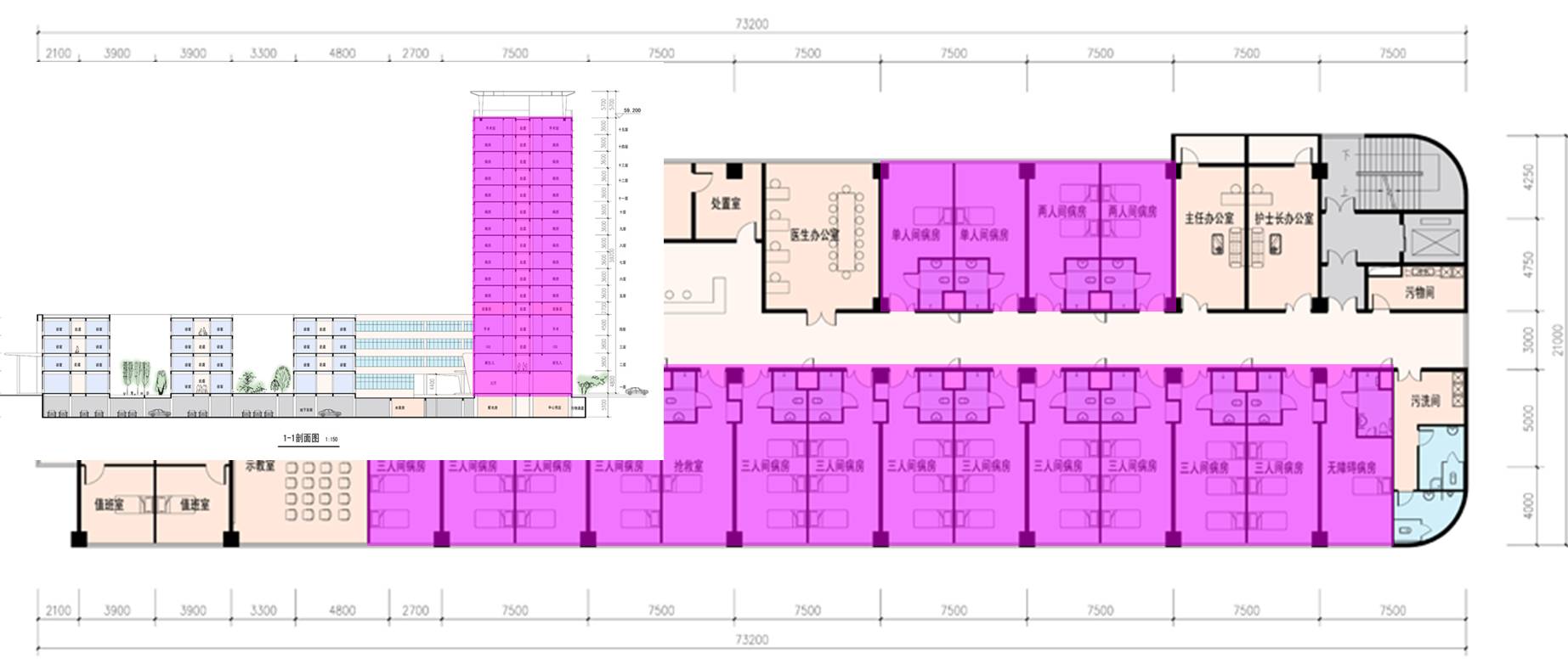
医院住院部设计虽然技术含量并不高,但是需要考虑的因素很多,总体来说包含两个方面:一是功能布局,即每层设置哪些功能单元,各功能单元之间是什么关系,各层之间的关系如何,最终要实现的是联系便捷、医患分流、洁污分流,而且,要让医患尽量享受到拥有自然通风和采光的舒适环境。二是细节设计,这更是考验设计人员的经验及态度的地方,墙角、水龙头、挂钩、灯光、温度控制、呼叫、无障碍设施等等等等,几乎每一处都有文章可做。
今天,我们不聊细节,只聊住院部的功能布局,看看那些优秀的医院建筑的住院部的功能都是怎么安排的。
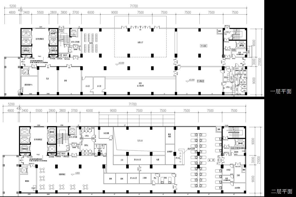
青岛西海岸医疗中心
病房楼设计中将病房全部南向布置,保证了每间病房都有良好的自然采光与通风,宽敞明亮的病房给患者提供了舒适的环境。护士站设置在中央位置,能够使其视线最大化,同时照顾到各个病房。
医护办公区域有单独的医护走廊,避免与患者相互影响。两个护理单元各设置一部急救电梯,可实现最短时间内处理紧急病情。餐饮区设置配餐间和小餐厅,为医生和患者提供了舒适方便的就餐环境。南向设置家属等候区,平时患者可在此休息锻炼,查房时间患者家属也可在此休息等候。
今天,我们不聊细节,只聊住院部的功能布局,看看那些优秀的医院建筑的住院部的功能都是怎么安排的。
青岛西海岸医疗中心
