古格天韵藏传文玩珠宝店设计
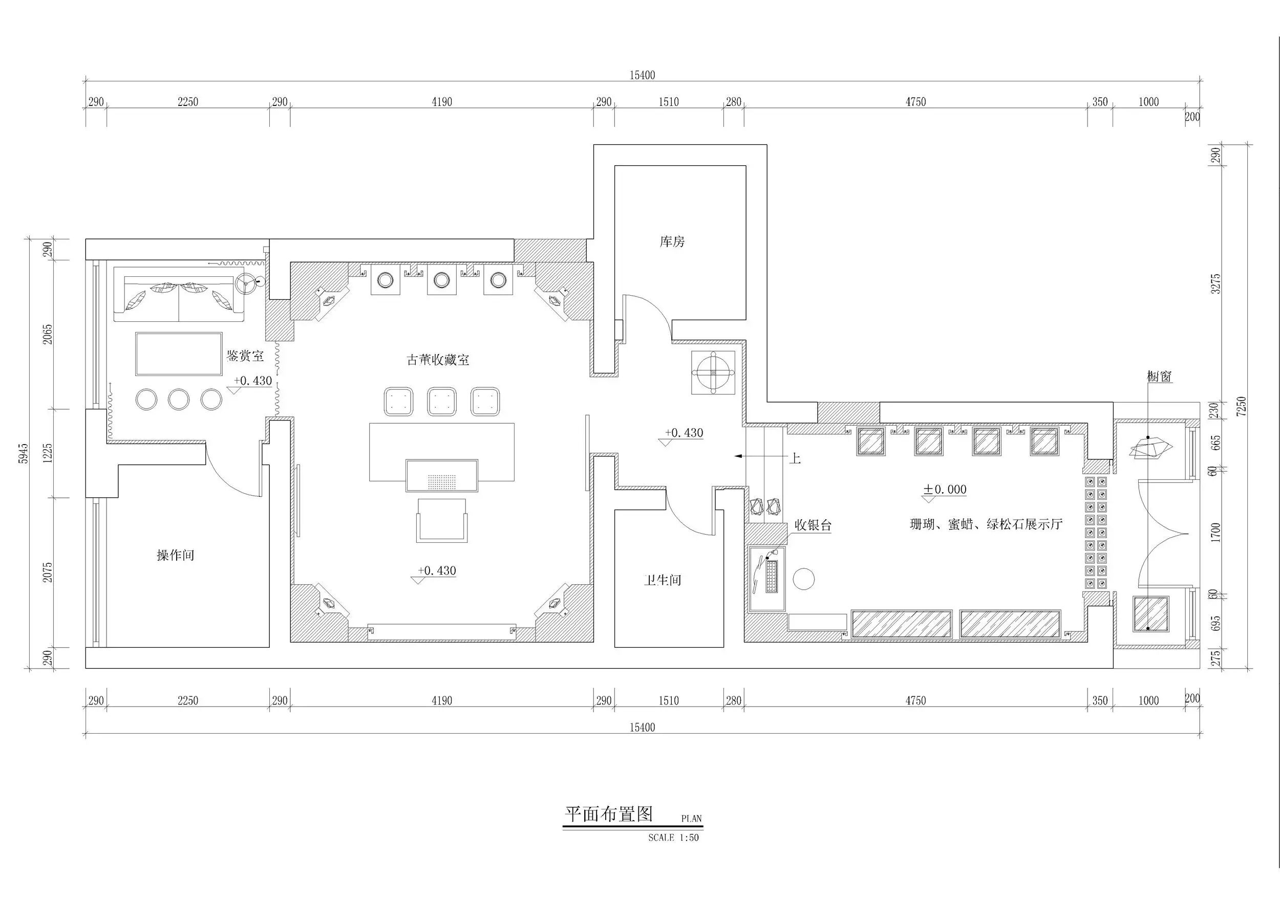
2015-10-31藏传文玩珠宝,顾名思义,即来自于藏民族地区具有文化历史传承的古玩珠宝。古格天韵是植根于千年文明古格王朝遗址的品牌设想,立志把千百年的藏传文玩珠宝推向国际时尚潮流视野表达的珠宝店品牌。作为品牌旗舰店只有70平方米左右,坐落于成都市武侯祠附近最著名藏街—洗面桥横街。
由于是商业展示空间,主体是文玩珠宝展品,要围绕提高产品特点辨识度和品质感来做设计。浓郁的西藏蓝是古格遗址的天,米黄的扪皮是古格的土,咖啡色的墙壁构成山脉阴面的投影,水泥灰蕴含悲凉和刚毅,这些硬装色彩系统构成了空间色彩的系统主脉。另外,土黄、灰色的空间主调,需要彩色来调和气氛。因此,使用了一幅类似敦煌壁画色彩的国际表达演变的一幅装饰画,再用蜜蜡、天珠、绿松石的三幅图片重新做了拼接。来达到“色彩是空间文化的抽象表现”的设计目标。
在展示上,最初的设计使用墙画的方式去展示陈列,可是藏文化的特点是多彩纷呈的彩色文化符号,与展品有很大的冲突。所以后来请了优秀的画师,用单色素描人物的表现形式做载体,佩戴真实的展品,达到了民族和现代以及艺术展示形式的完美结合。
在软装设计上几乎没有浓重的文化符号,比如灯具,选择的现代灯具,灯具和布品,都是扮演虚的角色,并不是需要突显出来;画品方面使用人物素描画,既是画品,又作为展示品的载体,同时满足了使用功能需求;在绿植花艺的选择上,因为店面是封闭的空间,古格文明遗址也见不到什么绿色,因此,
