项目简介
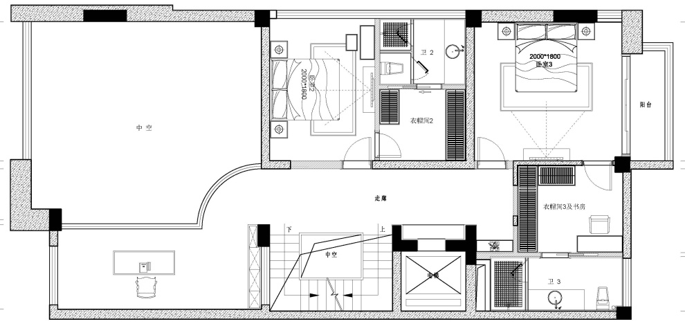
项目地址:中信红树湾
项目面积:760平米
项目类型:别墅
施工单位:蓝迪装饰
全案设计:朴英博
在历史的长河中,人类的出现仅仅是短短一刹,更何况芸芸众生中的你我。在有限的时间中,体验丰富的生活,才是富有品质的人生。
本案的主人在珠海著名的高端社区——中信红树湾购置别墅,供全家人入住。从设计需求上能看出主人丰富的兴趣。
别墅一楼兼具多项功能:私家影院、干蒸桑拿、台球消遣、运动健身、西餐品酒、中厨聚餐、露天花园、户外烧烤等。
编辑
常规设计中,影音室常被安置在地下室,避免外界光线、杂音干扰。但本案的主人要求在一楼设置影音室,足以证明他对此的爱好。不但位置方便,空间超大,可供五人在此体验极致的视听感受。在隔绝外界的空间之内,用一场电影的时间,去品味别样人生,感受另一个世界。
编辑
在此之外,一楼空间还设置有台球桌、健身区,挥洒汗水之余,甚至可以去一旁的干蒸室桑拿。在排除一身汗水之后,还可以在浴缸中浸泡畅享。而这些设施均在一楼公卫之中。足以看出主人的热情好客。
既然要招待朋友,又怎能少得了美酒?主人将存放私藏的酒窖与西厨安置在一起,联通一处吧台,正是为了便于邀三五好友在此把酒言欢。
若觉得室内场地约束,那室外花园的露天餐台,更是让人肆意享受的闲暇时光的绝妙之地。绿植与珍馐共享,阳光伴微风
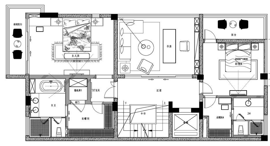
项目地址:中信红树湾
项目面积:760平米
项目类型:别墅
施工单位:蓝迪装饰
全案设计:朴英博
在历史的长河中,人类的出现仅仅是短短一刹,更何况芸芸众生中的你我。在有限的时间中,体验丰富的生活,才是富有品质的人生。
本案的主人在珠海著名的高端社区——中信红树湾购置别墅,供全家人入住。从设计需求上能看出主人丰富的兴趣。
别墅一楼兼具多项功能:私家影院、干蒸桑拿、台球消遣、运动健身、西餐品酒、中厨聚餐、露天花园、户外烧烤等。
编辑常规设计中,影音室常被安置在地下室,避免外界光线、杂音干扰。但本案的主人要求在一楼设置影音室,足以证明他对此的爱好。不但位置方便,空间超大,可供五人在此体验极致的视听感受。在隔绝外界的空间之内,用一场电影的时间,去品味别样人生,感受另一个世界。
编辑在此之外,一楼空间还设置有台球桌、健身区,挥洒汗水之余,甚至可以去一旁的干蒸室桑拿。在排除一身汗水之后,还可以在浴缸中浸泡畅享。而这些设施均在一楼公卫之中。足以看出主人的热情好客。
既然要招待朋友,又怎能少得了美酒?主人将存放私藏的酒窖与西厨安置在一起,联通一处吧台,正是为了便于邀三五好友在此把酒言欢。
若觉得室内场地约束,那室外花园的露天餐台,更是让人肆意享受的闲暇时光的绝妙之地。绿植与珍馐共享,阳光伴微风








