
项目名称:西安·尚塬乡村民宿三期
项目地址:西安.白鹿原狄寨镇杨沟村
项目类型:乡村民宿改造设计
项目面积:占地1亩,建筑面积1340平方米
设计风格:追求本真、时尚新颖
设计公司:DCV第四维(www.dcv.so)
设计范围:建筑规划设计/景观规划设计/室内设计/软装陈设
设计成员:王咏/张阳/王彩峰/曹玉龙/许素香/韩秋荣
设计时间:2021.01.
主要材料:钢结构、防腐木、灰瓦、石子、真石漆、钢



老宅建筑的设计借用了原始建筑的形态,通过加层、扩建的方式更好的呈现出了建筑的美学效果,同时通过大面积的落地窗和层次错落的形式,将光影效果得到了很好的表达。


在设计方向上,保留了部分原有建筑,并融入新的设计元素,通过玻璃砖、天窗顶、夯土墙与青砖共结合的形式,使建筑结构在新旧结合的同时,错落有致,还别具特色。
老宅门前的马路虽然阻碍了建筑的更丰富化,但山畔的落差却形成了一个天然的花园平台。门前的“小桥流水”与马路边的景致水缸交相呼应,流而不断,断而相承......
沿着波光潋滟的流水墙,或通过地下隧道的链接,让花园露台跟建筑形成了一个分而不断的整体,同时也增加了空间的趣味性。
在这栋建筑的入口处理上,我们利用走廊的连通性漫步着进到展厅,清透的玻璃砖墙上折射着“尚塬”发展的点滴景象,似镜子,又似未来,一片光明美好之景。
老宅的接待厅的区域采用了有质感的石材和金属材质,顶上的水波纹板与室外的水景交相呼应着,那种“波光粼粼”的感觉就似室外的活水,一圈圈的荡漾开来,与窗边的明亮景象遥遥相应着。原木色、夯土墙、暖色家具、暖色灯光、摇曳的壁火,这里的一切仿佛都是在为了温暖了整个接待大厅而相聚的。
接待厅东侧被大面积的玻璃窗和玻璃砖照的通透,干净大气的无主灯设计,却被几处别致的地灯和楼梯灯“点”亮。待夜幕降临时,隐藏在屋中的灯全部亮了起来,更加衬托出空间的窗明几净。
踏着楼梯层叠的亮光,缓缓进到缤彩纷呈的客房区域——这里有一应俱全“温馨之家”的系列套房;有清爽静心的“森系世界”;有唯美纱幔的“溯源本心”等,不同的空间给予我们多式多样的入住心境。
考虑到房子的多样化用途和使用者的多元化体验,让我们萌生了把“攀岩走壁、冒险磨炼”等元素加入其中,由此衍生出“孩童天地”系列。一个“家”,一家人,一个流连忘返的“家”......
在寻求一方净土的同时,我们亦要把“净”做到最大化。“去繁存简”的卫生间,滤过了生活的杂质,将空间做到简而不奢,但又一应俱全。
一壶茶,一颗树,一缕香氛,;一本书,一席话,一伙亲朋,就是一个闲暇午后。透过窗,越过顶,述说着大自然的一山一水、一草一木......
闲暇过后,再到地下室进行一场酣畅淋漓的放松娱乐,冉冉升起的“火苗”,给这个空间提供了更多地热情。
负一层手绘平面方案
一层手绘平面方案
二层手绘平面方案
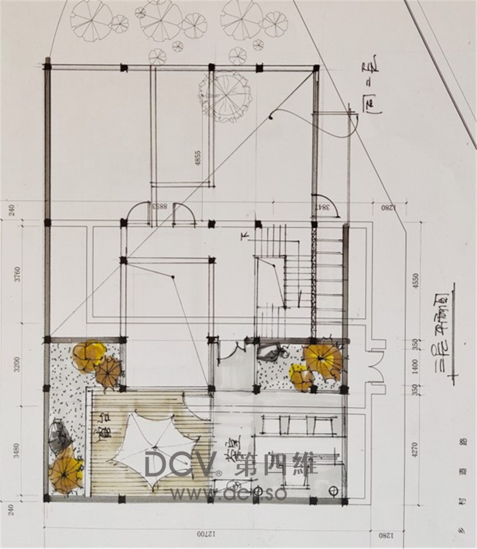
三层手绘平面方案
负一层彩色平面方案
一层彩色平面方案
二层彩色平面方案
三层彩色平面方案
三层夹层彩色平面方案